1/20利府イベント

イベントの詳細はこちらをご覧下さい。

イベント会場図・タイムスケジュール(pdfファイル、47KB)
(下記は上記pdfファイルの各ページをgifファイルにしたもの)
タイムスケジュール
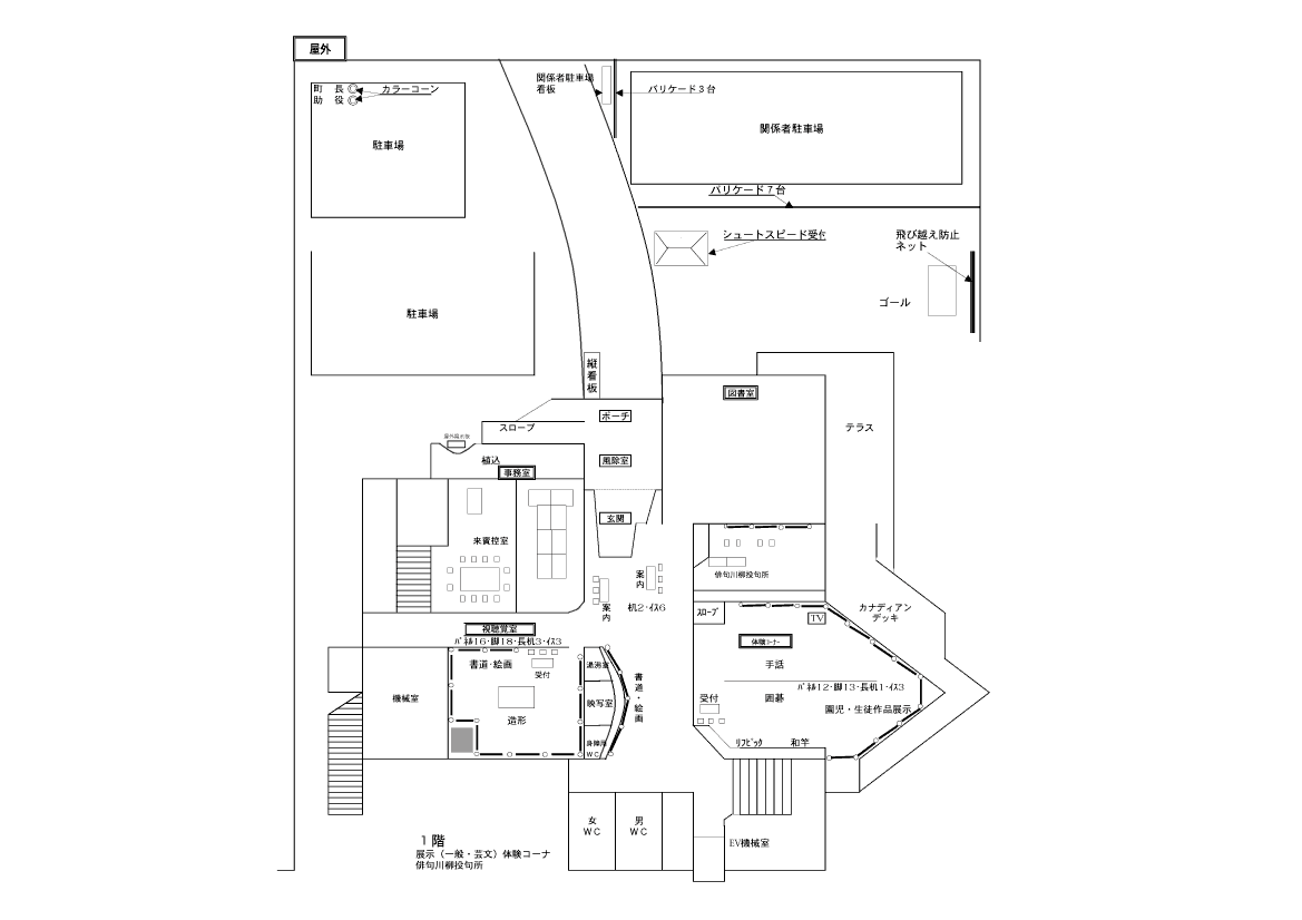
屋外: シュートスピード大会(雨天時中止、雪のときは決行)
1階: ベガルタ選手サイン会など
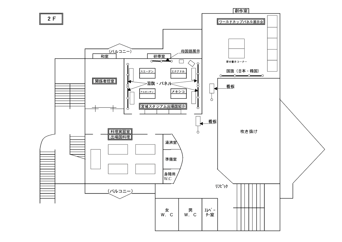
2階: ワールドカップパネル展、宮城スタジアム出場国紹介(各国料理も)
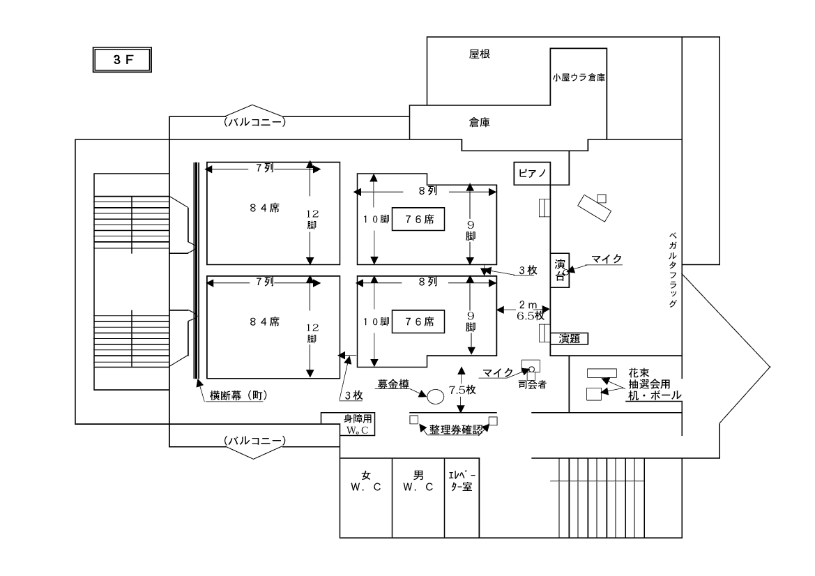
3階: ベガルタ仙台・清水監督講演会